줌룸(Zoom Rooms)을 활용한 2 display 화상회의 실 구축
설치 제품 : Logitech Rally Plus, TAP IP, 삼성 85인치 TV(LH85BED), Epson 프로젝터 EB-L775U 등
설치 장소 : 부산
회의실 규모 : 16명 + 8명(확대) 대회의실
화상회의 소프트웨어 : Zoom Rooms
엔지니어 설치 후기
안녕하세요, 오늘은 화상회의를 진행할 때 2 display 사용하여, 공유자료, 발표자, 참가자 등을 분리하여 각각의 display 에 나타내기 위하여, 줌룸(Zoom Rooms)을 활용하여 회의실을 구축한 사례를 공유해 보도록 하겠습니다.
이번에 설치를 진행한 고객사는 부산의 대표적인 기업으로, 줌 기업용 라이센스(Zoom Enterprise)를 사용하고 있는 고객으로, 이번에 본사와 가까운 곳에 새로운 사옥을 마련해 그 곳의 회의실 등에 화상회의를 진행할 수 있도록 로지텍 Video Collaboration 제품을 설치 하였습니다. 오늘은 그 중에 대형회의실에 화상회의 시스템을 구축한 사례를 공유 드리도록 하겠습니다.
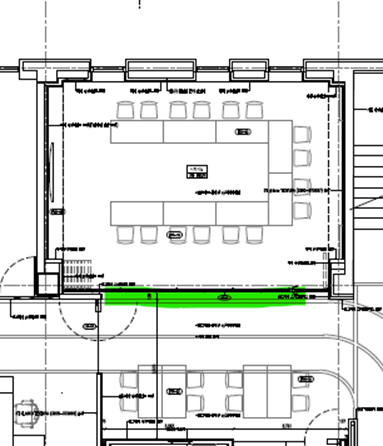
대형회의실은 보통 때는 16인 회의실로 사용하다가, 교육이나 타운홀 미팅 등이 있을 때는 아래 초록색부분으로 표시한 부분을 열어서 전체 공간으로 사용하기로 계획되었습니다.

그래서, 일반회의 시에는 도면 상 회의실 좌측에 85인치 사이니지 2대를 사용하고, 공간을 열었을 때는 상단에 화면을 두어 활용할 계획입니다.
고객의 요구 사항을 정리해 보면,
1. 사이니지 2대를 활용하되, 화상회의 시에는 한쪽에는 발표자의 얼굴이, 나머지 한쪽에는 참가자의 얼굴이 나오도록 하고,
2. 회의실 좌석 배치가 유동적이라 어느 방향에서 이야기 하더라도, 상대방에게 골고루 목소리가 전달되어야 하며,
3. 교육시에는 공간을 터서 멀리 있는 사람도 잘 보일 수 있도록 스크린은 최대 사이즈로 구성해야 한다
였습니다.
고객의 첫번째 요구 사항에 맞추기 위해서는, 우선 2 display 를 자유자재로 활용할 수 있는 줌룸(Zoom Rooms) 라이센스를 사용하기로 하였습니다. 카메라와 마이크 스피커는 로지텍 랠리플러스(Rally Plus) 를 사용하기로 하였으며, 줌룸(Zoom Rooms) 활용과 손쉬운 회의 개최와 참가를 위해 로지텍 룸메이트(RoomMate)와 탭아이피(TAP IP) 를 설치 하기로 하였습니다.
그리고 두번째 요구 사항을 맞추기 위해서는 마이크를 천장에 고정으로 배치 하는 것 이었습니다.
그리고 마지막으로 삼성 사이니지외에 회의실 다른 벽면에 대형스크린을 설치하여 프로젝터를 사용하기로 하였습니다.
설계를 모두 마치고, 자 이제 공정 단계별 투입을 합니다.
항상 그렇듯이 현장 상황에 따라 공정 진척이 수시로 변하기 때문에 수시로 현장을 확인하고 현장 소장과 커뮤니케이션 하는 것이 중요 합니다.
회의실 공사가 한참이네요.

천장 마감전에 필요한 배관/배선 작업을 진행합니다. 높이가 있다보니 안전 장비 착용은 필수입니다.

어느 정도 천장 마감이 끝났으면, 프로젝터와 스크린 설치를 진행합니다.
프로젝터의 경우에는 밝기 7000 ansi 의 엡손(Epson) EB-L775U 를 사용하였습니다.

다음으로는 삼성 사이니지 2대를 설치 합니다.
아직 설치 완료까지는 많은 작업들이 남았으므로 먼지가 쌓이지 않게 잘 포장해 둡니다.

자, 이제는 마이크(Rally Mic Pod) 설치를 진행합니다. 물론 사전에 미리 설계되었던 부분이기는 하지만 현장 상황에 따라 조금씩 바뀔 수 있습니다.
그때 그때 고객님께서 의사 결정도 해주셔야 하고요~
마이크는 회의실에 배치할 위치가 중요합니다. 앞에서 말씀 드렸듯이 좌석배치가 유동적이라, 회의테이블 위에 고정하는 마이크를 사용할 수가 없어서 천장에 설치하기로 하였습니다.
그런데 천고 또한 높아서, 고민 끝에 마이크 펜던트 마운트 (Mic Pod Pendant Mount)를 사용하기로 하였습니다. 항상 이 부분이 고객과 실랑이가 벌어지는 부분이기도 하구요....
제 입장에서는 최대한 아래로 늘어뜨려서 수음 품질을 좋게 하고 싶지만, 고객분들은 대부분 인테리어 미관상 최대한 높게 하시기를 원하셔서요....

우리 엔지니어님 고생이 많네요.
결국 마이크 펜던트 마운트(Mic Pod Pendant Mount)를 사용하여 이렇게 깔끔하게 달았습니다. 깔맞춤도 했네요!

자 이제 거의 다 왔습니다. 물론 하루에 한 작업은 아니고요... 며칠에 걸쳐서 공정에 맞추어서 진행하였습니다.
삼성사이니지 뒷면에 로지텍 랠리플러스(Rally Plus)와 룸메이트(RoomMate)를 설치 합니다.
85인치 사이니지를 내리고, 연결테스트 부터 진행합니다. 연결에는 이상이 없습니다.

HDMI백업라인, 프로젝터 연결 라인, 분배기, 인터넷 라인등 대부분의 라인을 추 후 유지보수 용이성을 위해 2중으로 구성하였습니다. 그러다 보니 선이 좀 복잡하네요.
랠리플러스(Rally Plus)의 카메라(Rally Camera), 디스플레이허브(Display Hub), 테이블허브(Table Hub), HDMI 분배기, 룸메이트(RoomMate) 하나하나 벽면에 고정시키고
선들을 정리해 나갑니다.

마이크와 탭 아이피(TAP IP)의 위치도 잡고 연결하면~~~
짜잔, 간단한 줌룸(Zoom Rooms) 라이센스 세팅을 마치면 이런 화면이 나와야 합니다.~~~

자 이제, 영상,음성, 화면 공유 등 테스트를 진행합니다.
모든것이 순조롭게 잘 작동합니다.
약간씩 다른 각도에서 찍은 사진들을 올려 봅니다.





첫 설계 제안부터 수개월이 걸린 프로젝트 였습니다.
이제 문제 없이 잘 사용하시기를 기원 합니다.~~~
물론 문제가 있거나 지원이 필요하실 경우에는 언제든지 불러주세요~~
줌룸(Zoom Rooms)을 활용한 2 display 화상회의 실 구축
설치 제품 : Logitech Rally Plus, TAP IP, 삼성 85인치 TV(LH85BED), Epson 프로젝터 EB-L775U 등
설치 장소 : 부산
회의실 규모 : 16명 + 8명(확대) 대회의실
화상회의 소프트웨어 : Zoom Rooms
엔지니어 설치 후기
안녕하세요, 오늘은 화상회의를 진행할 때 2 display 사용하여, 공유자료, 발표자, 참가자 등을 분리하여 각각의 display 에 나타내기 위하여, 줌룸(Zoom Rooms)을 활용하여 회의실을 구축한 사례를 공유해 보도록 하겠습니다.
이번에 설치를 진행한 고객사는 부산의 대표적인 기업으로, 줌 기업용 라이센스(Zoom Enterprise)를 사용하고 있는 고객으로, 이번에 본사와 가까운 곳에 새로운 사옥을 마련해 그 곳의 회의실 등에 화상회의를 진행할 수 있도록 로지텍 Video Collaboration 제품을 설치 하였습니다. 오늘은 그 중에 대형회의실에 화상회의 시스템을 구축한 사례를 공유 드리도록 하겠습니다.
대형회의실은 보통 때는 16인 회의실로 사용하다가, 교육이나 타운홀 미팅 등이 있을 때는 아래 초록색부분으로 표시한 부분을 열어서 전체 공간으로 사용하기로 계획되었습니다.
그래서, 일반회의 시에는 도면 상 회의실 좌측에 85인치 사이니지 2대를 사용하고, 공간을 열었을 때는 상단에 화면을 두어 활용할 계획입니다.
고객의 요구 사항을 정리해 보면,
1. 사이니지 2대를 활용하되, 화상회의 시에는 한쪽에는 발표자의 얼굴이, 나머지 한쪽에는 참가자의 얼굴이 나오도록 하고,
2. 회의실 좌석 배치가 유동적이라 어느 방향에서 이야기 하더라도, 상대방에게 골고루 목소리가 전달되어야 하며,
3. 교육시에는 공간을 터서 멀리 있는 사람도 잘 보일 수 있도록 스크린은 최대 사이즈로 구성해야 한다
였습니다.
고객의 첫번째 요구 사항에 맞추기 위해서는, 우선 2 display 를 자유자재로 활용할 수 있는 줌룸(Zoom Rooms) 라이센스를 사용하기로 하였습니다. 카메라와 마이크 스피커는 로지텍 랠리플러스(Rally Plus) 를 사용하기로 하였으며, 줌룸(Zoom Rooms) 활용과 손쉬운 회의 개최와 참가를 위해 로지텍 룸메이트(RoomMate)와 탭아이피(TAP IP) 를 설치 하기로 하였습니다.
그리고 두번째 요구 사항을 맞추기 위해서는 마이크를 천장에 고정으로 배치 하는 것 이었습니다.
그리고 마지막으로 삼성 사이니지외에 회의실 다른 벽면에 대형스크린을 설치하여 프로젝터를 사용하기로 하였습니다.
설계를 모두 마치고, 자 이제 공정 단계별 투입을 합니다.
항상 그렇듯이 현장 상황에 따라 공정 진척이 수시로 변하기 때문에 수시로 현장을 확인하고 현장 소장과 커뮤니케이션 하는 것이 중요 합니다.
회의실 공사가 한참이네요.
천장 마감전에 필요한 배관/배선 작업을 진행합니다. 높이가 있다보니 안전 장비 착용은 필수입니다.
어느 정도 천장 마감이 끝났으면, 프로젝터와 스크린 설치를 진행합니다.
프로젝터의 경우에는 밝기 7000 ansi 의 엡손(Epson) EB-L775U 를 사용하였습니다.
다음으로는 삼성 사이니지 2대를 설치 합니다.
아직 설치 완료까지는 많은 작업들이 남았으므로 먼지가 쌓이지 않게 잘 포장해 둡니다.
자, 이제는 마이크(Rally Mic Pod) 설치를 진행합니다. 물론 사전에 미리 설계되었던 부분이기는 하지만 현장 상황에 따라 조금씩 바뀔 수 있습니다.
그때 그때 고객님께서 의사 결정도 해주셔야 하고요~
마이크는 회의실에 배치할 위치가 중요합니다. 앞에서 말씀 드렸듯이 좌석배치가 유동적이라, 회의테이블 위에 고정하는 마이크를 사용할 수가 없어서 천장에 설치하기로 하였습니다.
그런데 천고 또한 높아서, 고민 끝에 마이크 펜던트 마운트 (Mic Pod Pendant Mount)를 사용하기로 하였습니다. 항상 이 부분이 고객과 실랑이가 벌어지는 부분이기도 하구요....
제 입장에서는 최대한 아래로 늘어뜨려서 수음 품질을 좋게 하고 싶지만, 고객분들은 대부분 인테리어 미관상 최대한 높게 하시기를 원하셔서요....
우리 엔지니어님 고생이 많네요.
결국 마이크 펜던트 마운트(Mic Pod Pendant Mount)를 사용하여 이렇게 깔끔하게 달았습니다. 깔맞춤도 했네요!
자 이제 거의 다 왔습니다. 물론 하루에 한 작업은 아니고요... 며칠에 걸쳐서 공정에 맞추어서 진행하였습니다.
삼성사이니지 뒷면에 로지텍 랠리플러스(Rally Plus)와 룸메이트(RoomMate)를 설치 합니다.
85인치 사이니지를 내리고, 연결테스트 부터 진행합니다. 연결에는 이상이 없습니다.

HDMI백업라인, 프로젝터 연결 라인, 분배기, 인터넷 라인등 대부분의 라인을 추 후 유지보수 용이성을 위해 2중으로 구성하였습니다. 그러다 보니 선이 좀 복잡하네요.
랠리플러스(Rally Plus)의 카메라(Rally Camera), 디스플레이허브(Display Hub), 테이블허브(Table Hub), HDMI 분배기, 룸메이트(RoomMate) 하나하나 벽면에 고정시키고
선들을 정리해 나갑니다.
마이크와 탭 아이피(TAP IP)의 위치도 잡고 연결하면~~~
짜잔, 간단한 줌룸(Zoom Rooms) 라이센스 세팅을 마치면 이런 화면이 나와야 합니다.~~~
자 이제, 영상,음성, 화면 공유 등 테스트를 진행합니다.
모든것이 순조롭게 잘 작동합니다.
약간씩 다른 각도에서 찍은 사진들을 올려 봅니다.
첫 설계 제안부터 수개월이 걸린 프로젝트 였습니다.
이제 문제 없이 잘 사용하시기를 기원 합니다.~~~
물론 문제가 있거나 지원이 필요하실 경우에는 언제든지 불러주세요~~